Descrizione

Nei pressi della Via Castelvetrano la 2r immobiliare propone la vendita di una villetta a schiera di nuova costruzione di mq 160 circa, con mandato in esclusivo.
Nella parte antistante l'abitazione è presente uno spazio di circa 50 mq, si accede da due cancelli uno pedonale e uno automobilistico.
L'immobile si sviluppa su due livelli abitativi, suddivisi rispettivamente in :
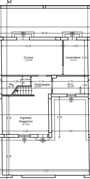
Piano terra composto da: ingresso, soggiorno con scala che conduce alla zona notte, cucina abitabile con accesso allo spazio esterno sul retro di 30 mq circa, dove è possibile realizzare un ulteriore cucina esterna grazie alla predisposizione degli impianti , servizio con doccia e ampia lavanderia.
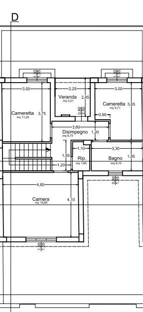
Primo piano composto da: tre camere da letto di cui una doppia e due singole, servizio con doccia e comodo ripostiglio, sempre al primo piano è presente una piccola veranda di mq 7 circa con scala che conduce al terrazzo sovrastante.
Gli spazi interni sono ben distribuiti e funzionali con rifiniture di alta qualità, gli ambienti interni sono luminosi ed accoglienti grazie alla presenza di ampie finestre che permettono l'ingresso della luce naturale.
Una soluzione ideale a chi cerca un'abitazione ampia e confortevole da personalizzare secondo i propri gusti.
L'immobile si trova in un ottima posizione in quanto posto in una zona residenziale tranquilla non lontano dai servizi e dalle attività presenti nella zona.

NOTA BENE: L'immobile è dotato di cappotto termico, pannelli solari e fotovoltaico di 3Kw, impianto di allarme di ultima generazione

RIFERIMENTO. V001774
Per informazioni e appuntamenti non esitate a chiamare la nostra agenzia al numero 0923/360251 oppure veniteci a trovare in via Emanuele sansone 15.


Caratteristiche principali

Stato Immobile
Ristrutturato
Grado
Medio
Posizione
Centro
Panorama
Vista Aperta
Lati Liberi
2
Giardino
Privato
Arredi
Non Arredato
Tipo Soggiorno
Soggiorno
Tipo Cucina
Abitabile
Riscaldamento
Autonomo
Tipo Riscaldam.
Caldaia
Tipo Impianto
Radiatori
Fonte Energetica
Metano
Acqua Calda
Autonoma
Infissi
Alluminio
Accessori: Antifurto, Aria Condizionata, Armadio a Muro, Cancello Elettrico, Doppi Vetri, Impianto Fotovoltaico, Lavanderia, Pannelli Solari, Passaggio Automobilistico, Passaggio Pedonale, Porta Blindata, Ripostiglio, Veranda, Video Citofono, Video Sorveglianza

Mappa

Via Strabone , Mazara del Vallo (TP)

Cookie preference